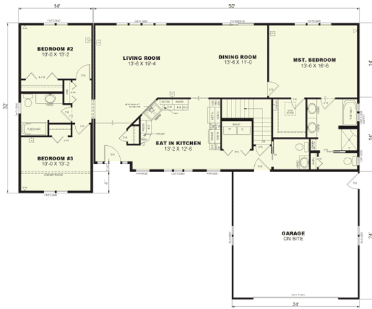
The Shoreview 1848
Dimensions:
28' x 50' /
14' x 32'
Square Footage:
1848
Bedrooms: 3
Bath: 2 + 1/2
 

 

 

About Rob Anderson Construction RAC and Dynamic Homes Dynamic Floorplans Have a custom floor plan you want built?  Click HERE. RAC Concrete Services RAC Photo Gallery Contact RAC Today RAC Home Dynamic Home Upgrades RAC Home RAC Home efitters Inc. Web Design and Development